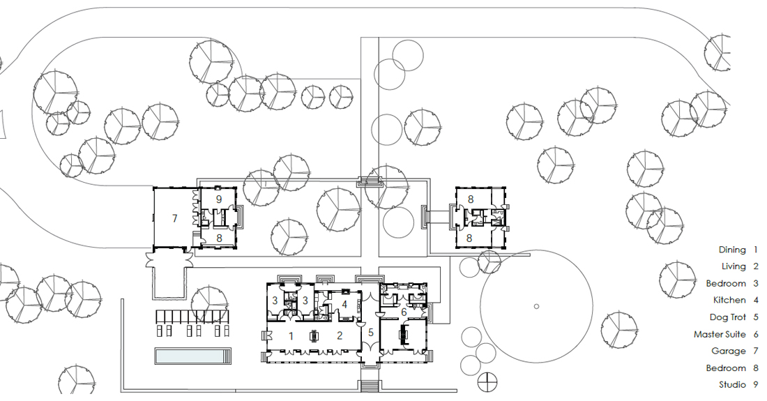
Lyday Farms Site Plan
The complimentary advice provided on ‘Life of an Architect’ is based on an abbreviated examination of the minimal facts given, not the typical extensive (and sometimes exhaustive) analysis I conduct when working with my clients. Therefore, anything you read on this site is not a substitute for actually working with me. Following my casual advice is at your own peril … if you want my undivided attention, I would recommend hiring me. Cheers.
