Let's pretend for a moment that you are designing a modern style house and you are in the middle of trying to figure out how your fireplace mantle will look. This exact scenario probably happens every … [Read more...]
Being an Architect … Amazeballs
I have had a very interesting past few days - the kind of interesting that confirms for me why I do what I do for a living. Every now and then I get a little beaten down from the act of doing my job … [Read more...]
Documenting Architecture with Photos
If you are an architect, you want to see your projects get built. One of the most enjoyable aspects of my job is going to the job site to check in on the progress of my projects as they are under … [Read more...]
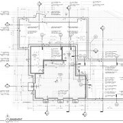
Technical Drawings
If you are the sort of person who likes to look at architectural drawings, this is your lucky day. At least I hope that after you read today's post you think this was your lucky day. I've decided … [Read more...]
The Final Stretch – KHouse Modern part 2
Since yesterday was my walk around the exterior of the KHouse Modern, I thought it was only fitting that today should be a walk around the interior. I haven't focused on the interior on this project - … [Read more...]
Aqua Verde – Architectural Proofs
This may come as a surprise but I don't talk about everything that goes on here at the office (just about) and that extends to projects. I suppose it should be obvious but we do more than 1 or 2 … [Read more...]



