I'm currently in Chicago celebrating the 50th birthday of a good friend of mine. In fact, there are four of us here and we all know each other from our time together from the University of Texas … [Read more...]
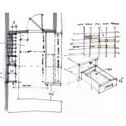
Architectural Sketches 003 – Japanese Playhouse
Architectural sketches typically fall into two distinctive camps (other than "Great!" or "terrible") and the relative purpose of those sketches seem to reflect the time period when the sketch was … [Read more...]
Architectural Sketches 002 – The Series
About 30 days and thousands of sketches later, it's time for the next round of Architectural Sketches - The Series. While I think adding "The Series" on to the end certainly makes it sound super … [Read more...]
Architectural Redlines During Design
Nothing makes people lose their minds faster than whenever I post a sketch ... you would think that contained somewhere within this sketch is the nuclear launch codes and because of my frivolous lack … [Read more...]
Architectural Sketches – The Series
Architects sketch as a part of doing their job - at least all the good ones that I know. Right now, as a general rule, it would appear that depending on how old you are, you either sketch, use … [Read more...]



